
無需復雜圖案,簡化設計,本案利用簡潔明朗的色彩和線條,將純粹二字體現到極致,搭配一些綠植,有一絲綠野仙蹤之感。
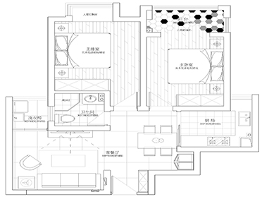
玄關

玄關花磚造型,將換鞋區域與內廳分割,白墻隔開客廳區域,分區明顯,白色收納柜與整體色調統一。
客廳

客廳用流暢的線條進行分區,白色干凈純粹,隨性的自然元素點綴,使空間極富生機。灰色布藝沙發柔軟而清新,原木色茶幾和電視柜與整體色彩呼應。
餐廳

客廳與餐廳空間由玄關隔斷自然分開,餐廳緊靠廚房,寬敞的過道,使空間動線更順暢。以淡雅清爽的自然材質為主,幾何造型吊燈突出個性與精致,生活情調盡顯于此。
廚房

廚房空間收納充足,使廚房空間整潔統一。玻璃移門使空間更加通透寬敞,更加開放。
書房

是書房也是休閑的個人空間,將自己的用心收藏的模型裝飾起來,讓辦公學習更有樂趣。
臥室

臥室的空間棱角用色塊區分,明朗的線條,簡約的裝飾,使空間更加立體。原木床頭柜搭配尤加利,給素凈的空間一抹綠意,營造質樸、清新的休憩空間。低飽和色調與原木的結合,有清冷的質感,讓空間靜謐而美好。
衛生間

與整體空間統一的原木色浴室柜,搭配黑框獨立淋浴房,簡約、純凈。





