
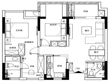
本案業主為新婚夫妻,這套房也是為了新婚而準備的,兩位業主都非常喜歡貓,家里無論是燈具還是桌面上,都有小貓玩偶的裝飾,裝點著他們的幸福。
客廳

客廳墻面整體采用白色乳膠漆,客餐廳一體,但又用吊頂區分層次,使餐廳空間單獨分布于客廳一角。吊頂筒燈光束打在幾何壁畫上,增加空間層次感。沙發邊桌上的小射燈使角落空間更加豐富。再擺上L形白色皮質沙發,顏值與舒適并存。

電視機墻面使用石膏線,兩邊的壁燈造型獨特,讓靜謐的夜晚更加溫馨。高低圓形茶幾使客廳空間更加整體,橙灰拼接窗簾增加空間韻律感,墻體采用水泥灰與白色墻面漆讓空間更加沉穩,簡單的拼接色彩,讓整體空間看起來時尚而低調。
玄關

房屋大門外開,節省室內空間,玄關柜屹立入門處,中空展示柜放上獨特的小物件,也能放些隨手物件,卡通地墊充滿童心,鞋柜下方留空,方便進出換鞋。
餐廳

餐廳位于沙發一旁,利用吊頂分開區域,另一端正對通往內室的走道。靠墻而放的餐桌十分節省空間,壁畫造型更是增加了空間延伸感。燈具上掛著小貓玩偶,用餐空間童趣十足。
廚房

明亮、開闊的廚房會讓做飯的人擁有好心情。小方格造型墻磚增加空間動感,黑色櫥柜穩重大氣,L形廚房充分利用空間,再也不會雜亂無章。
走廊

廚房使用玻璃墻面,給人一種半開放的感覺,同時顯得空間更加明亮寬闊,減緩視覺疲勞。幽深的走廊直通主臥,另一端則是與餐廳相對。
主臥

走廊盡頭是主臥是大門。微風拂過,窗簾隨意飄起,給臥室帶來光潔與明朗。簡單的白色墻面,灰色床頭背景墻面,色彩簡單,才能給人放松的愜意感。

入門的另一端則是小書桌與衛生間,正面墻的衣柜將所有衣物整潔收納,同時又與墻面形成整體。
次臥

次臥采用單邊床頭柜,充分利用空間,床頭掛畫也是貓咪畫像,清新而溫柔。入門衣柜讓外界與室內形成一個過渡設計師將小小空間合理安置,中央空調美觀且節約空間。
衛生間

外衛采用黑白調色彩,注入時尚元素,利用黑白區分干濕兩區,格局明確。內衛將浴室柜收納做大,馬桶旁設置開放格,方便拿取。
陽臺

整面落地窗是空間通透明亮,功能性陽臺將洗衣晾曬安置于此,收納柜設計開放格,放上常用物品,整體為純凈的白色調。





