
幸福是每一個微小的生活愿望達成。想吃的時候有得吃,想愛的時候有人愛。幸福會改變模樣,以各種各樣的形態。一次次的悄然來到尋求之人身邊。
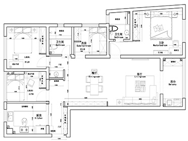
客廳

現代風,將美觀與實用結合,突破傳統的設計,追求空間的極致利用,黑與白即是精髓。

客餐廳一體,天藍色的沙發背景墻用色使客廳清新明亮,動線干凈利落,層次分明。高純色彩,簡潔吊頂,柔軟自然的配飾,讓人想窩進沙發里放松一下。
陽臺

陽臺設置洗衣區,結合收納與功能性,吊柜底部設計開放格,放置常用物品格外方便。另一側為整面收納柜,更注重實用性,嵌入式的設計讓空間更為合理。
餐廳

客餐廳以餐邊柜分開區域,格局更加明朗,活動空間也較為充足。廚房靠近入戶們,而餐廳則靠近入戶走道,通透明亮的純白質地,是餐廳空間的主旋律。餐邊柜是整面墻的收納柜,利用空間優勢做足了收納的同時,又為不同空間做出了區別。中空設計加上感應燈帶處理,讓開放格更有藝術感,也為生活增添了些許時尚。
玄關

純凈白色的墻頂面和大理石紋地磚使空間嚴謹有序,搭配抽象壁畫,使色彩在空間中延伸碰撞。設計師充分利用入戶的墻面空間,整面收納玄關柜使空間井然有序。
廚房

白色,透露出來的是賞心悅目的細致,U形廚房設計,擴大了廚房的操作空間,動線合理。
主臥

粉色床頭墻面搭配暖色燈光,給臥室蒙上了一層靜謐溫暖的格調。床頭位置的壁龕設計,是躲在墻里的收納,充分利用空間的同時,又顯得十分特別。圓形造型的吊燈給素凈的墻面帶來線條造型感,衣柜移門設計在空間利用上更加便捷。

床尾放置梳妝臺,是女主人精心打扮自己的地方,避免了窗口的光源直視,收納整潔舒適。
男孩房

男孩房是整面落地窗,拉開窗簾,視野上更加開闊,藍色調的房間是男孩子的心頭好。城堡墻壁造型的床頭,增添了更多的童趣,搭配藍色書桌椅,讓孩子更加自由的成長。
女兒房

以輕盈夢幻的淡粉色為主調的居所,清新又溫柔,功能和實用為主的同時,迎合了女兒對新房間的期待。女兒的書桌房在床尾處,讓無論是學習還是休息,都有自己獨立私密的空間。豐盈的臥室空間,喚起每日活力,粉色床頭墻面配合燈光,營造柔和的氛圍。
衛生間

洗手區域衛生間分離,是孩子們的專用區域。半隔斷的設計,是洗手區成為一個半開放的空間。童趣的藍色調,讓孩子更加享受洗漱的時光,鏡柜的開放格等收納,更加便捷的放置孩子的物品。內衛更有私密性,功能更加全面,淋浴房壁龕設計,收納更加整潔。

公衛在風格上更加簡約,更加注重其實用性,色調簡潔,便于打理。





